Leben ist pflegenswert…
© Seniorenresidenz Hövelhof GmbH - QualiVita 2021
Kontaktinformationen
Anfahrtsskizze
Seniorenresidenz Hövelhof Bielefelder Straße 34 | 33161 Hövelhof Telefon: 05257 / 701 98 - 0 Fax: 05257 / 701 98 - 121 Bürozeiten: Mo - Fr von 8:00 Uhr - 17:00 Uhr und gerne nach telefonischer Vereinbarung. Ein Unternehmen der QualiVita AG.
Kontakt
QualiVita
Wissenswertes
|
Apartment 62 & 63 Die Apartments sind selbst- verständlich barrierefrei und Rollstuhlgerecht konzipiert.

Lage und Umgebung

Für Besucher ist Hövelhof auf der Karte leicht zu finden, denn Hövelhof liegt an den Quellen der Ems. Der bekannte Fluss entspringt im Naturschutzgebiet Moosheide und mündet nach 370 km in die Nordsee. In der Moosheide ist die ursprüngliche Sennelandschaft mit ihren malerischen Bachtälern, Dünen und ihrer Heidevegetation noch unverfälscht erhalten. Der Ortskern in Hövelhof ist mit allen wichtigen Einrichtungen des täglichen Bedarfs in wenigen Minuten fußläufig erreichbar. Der gute Mix aus optimaler Verkehrsanbindung, einem vielfältig kulturellen Angebot und ausgewogenen Freizeitmöglichkeiten macht diesen Standort zu einem idealen Wohnort für die Bewohner der Seniorenresidenz.

Überblick einiger Grundrissvarianten

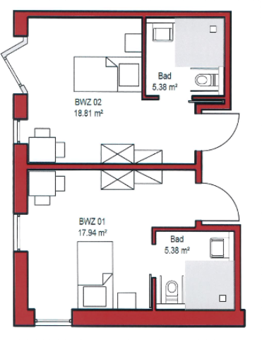
Apartment 01 & 02 Jedes Apartment verfügt über ein eigenes Badezimmer mit ebenerdiger Dusche.

Lage und Umgebung

Für Besucher ist Hövelhof auf der Karte leicht zu finden, denn Hövelhof liegt an den Quellen der Ems. Der bekannte Fluss entspringt im Naturschutzgebiet Moosheide und mündet nach 370 km in die Nordsee. In der Moosheide ist die ursprüngliche Sennelandschaft mit ihren malerischen Bachtälern, Dünen und ihrer Heide- vegetation noch unverfälscht erhalten. Der Ortskern in Hövelhof ist mit allen wichtigen Einrichtungen des täglichen Bedarfs in wenigen Minuten fußläufig zu erreichen. Der gute Mix aus optimaler Verkehrsanbindung, einem vielfältigen kulturellen Angebot und ausgewogenen Freizeitmöglichkeiten macht diesen Stand- ort zu einem idealen Wohnort für die Bewohner der Seniorenresidenz.

Grundrissvarianten

Apartment 01 & 02 Jedes Apartment verfügt über ein eigenes Badezimmer mit ebenerdiger Dusche.
Seniorenresidenz Hövelhof Bielefelder Straße 34 | 33161 Hövelhof Telefon: 05257 / 701 98 - 0 | Fax: 05257 / 701 98 - 121 Bürozeiten: Mo - Fr von 8:00 Uhr - 17:00 Uhr und gerne nach telefonischer Vereinbarung. Ein Unternehmen der QualiVita AG.
© Seniorenresidenz Hövelhof GmbH - QualiVita 2021

Leben ist pflegenswert…

QualiVita
Kontakt
Apartment 62 & 63 Die Apartments sind selbstverständlich barrierefrei und Rollstuhlgerecht konzipiert.
Pflege.
Betreuung.
Versorgung.